New wardrobe with mirror doors

Learn more details about this project

Info

Project Type

Residential

Location

Elephant and castle

Completed

September 2022

pound-coin

Value

£3200

Duration

2 days

Provision

Wardrobes

Description

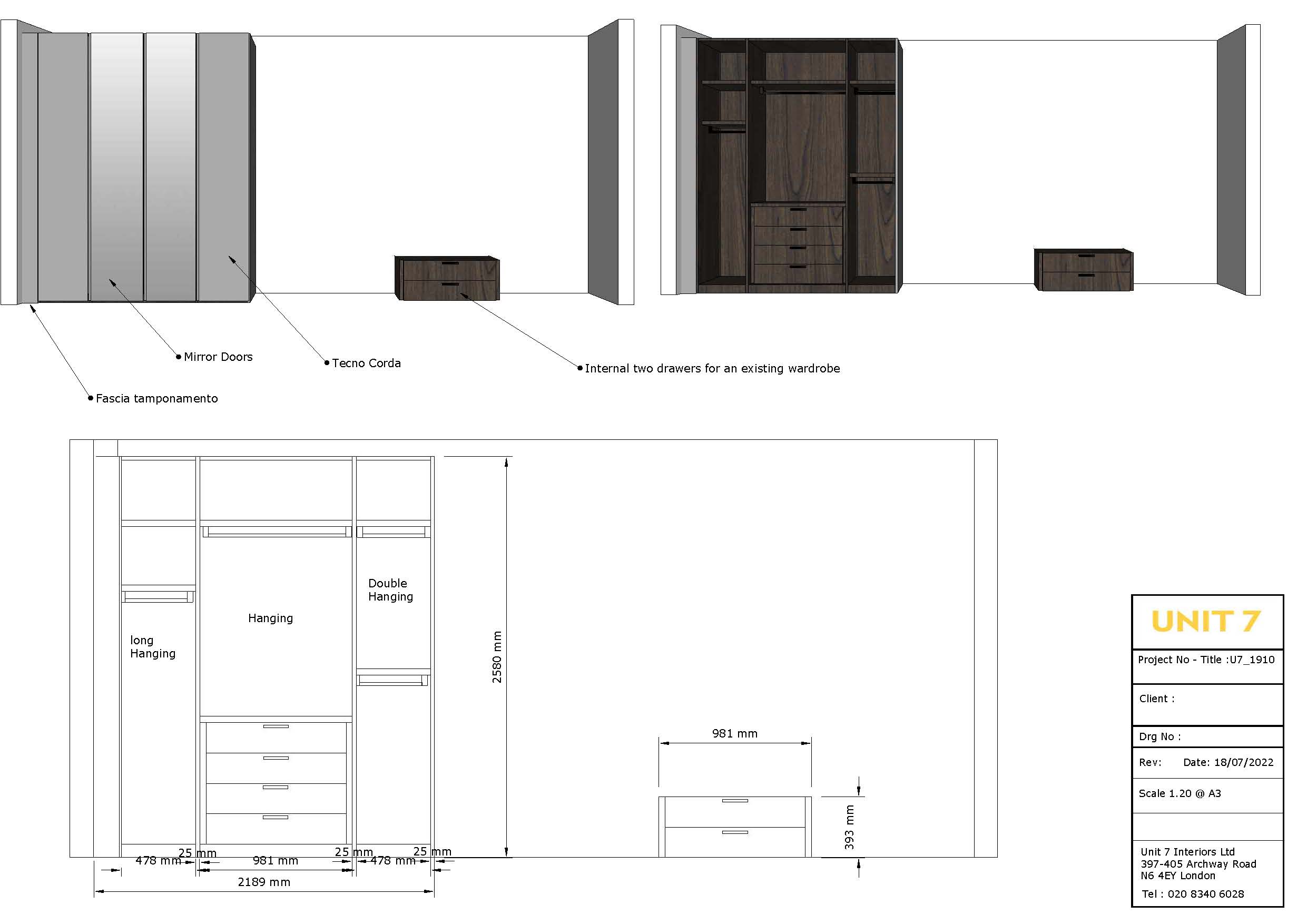
We added one new wardrobe in the master bedroom for additional storage. The wardrobe has been made with mirror doors and lacquered finish the same as the previously fitted wardrobes

3d Mockup

End Result

Order Drawings

End Result

Click Image to Enlarge

Interested in starting a new project with us?